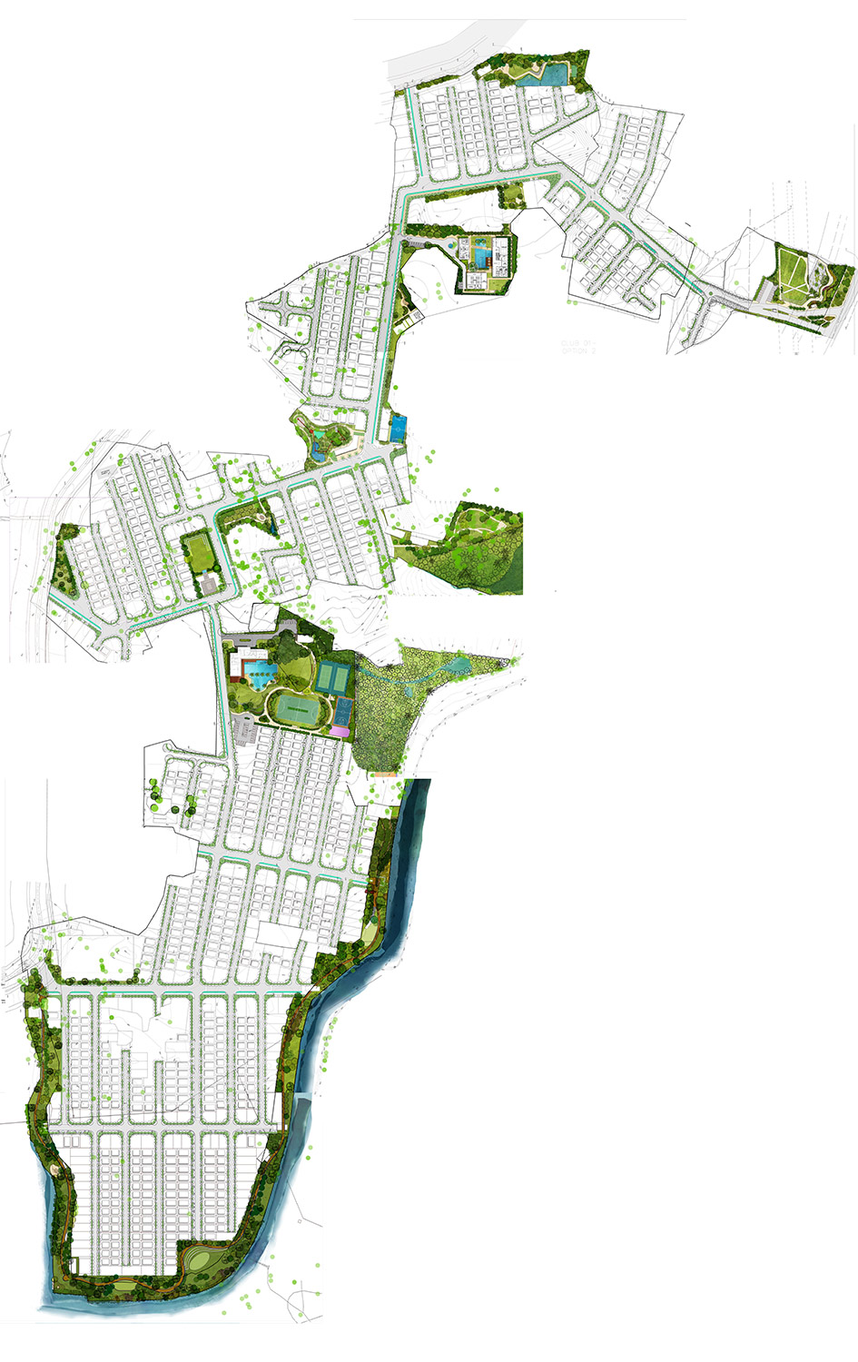
Khalapur, Maharashtra
Client: Godrej Group
Area: 99 Acres
Status: Ongoing
The project's primary objective is to incorporate Blue-Green Living principles into the public spaces of the plotted villa township, fostering holistic well-being by nurturing the symbiotic connection between oxygen, plants, and a healthy lifestyle. It follows a Biophilic Landscape Strategy, seamlessly blending various forest types and green areas, such as rain tree canopies, orchard roads, tropical forests, riverine forests, ceremonial forests, and more throughout the township.
The site runs parallel to an active seasonal stream, providing riverine edge treatments and sponge landscapes along its banks, best experienced through a non- intrusive boardwalk. This approach aims to invigorate the mind, body, and spirit while promoting harmony with nature and enriching the overall environment.